永嘉縣工布自控閥門有限公司是一家集生產,銷售為一體的專業生產調節閥公司。

【簡單介紹】
自力式壓力調節閥引入執行機構控制閥芯位置,改變兩端的壓差和流量,使閥前(或閥后)壓力穩定。具有動作靈敏,密封性好,壓力設定點波動小等優點,廣泛應用于氣體、液體及蒸汽介質減壓穩壓或泄壓穩壓的自動控制。本系列產品有單座(ZZYP)、套筒(ZZYM)、雙座(ZZYN)三種結構:執行機構有薄膜式、活塞式二種:作用型式有減壓用閥后壓力調節(B型)和泄壓用閥前壓力調節(K型)。
【詳細說明】
自力式壓力調節閥是由閥體、閥座、閥芯、平衡彈簧等部件組成,是一種無需外加能源,利用被調節介質自身壓力變化來進行自動調節的閥門,是根據力學原理將被控介質引入執行機構產生力作用推動,控制閥芯元件上下位移達到自動調節,閥前或閥后恒壓或減壓的節能型產品。該產品最大的特點是能在無電、無氣的場所工作,壓力設定值在運行中可隨意調整。采用快開流量特性,動作靈敏、密封性能好,廣泛應用于石油、化工、電站、輕工、印染等各種工業設備中氣體、液體、蒸汽等介質壓力的自動控制。
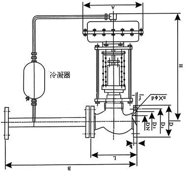
本系列產品執行機構有:薄膜式、活塞式兩種;作用形式有:閥前壓力調節(泄壓持壓型),閥后壓力調節(減壓穩壓型);附設隔溫冷凝罐可在≤350℃溫度下使用。根據不同的工況條件可選用不同的閥芯結構型式以及不同執行機構,以達到最佳的控制效果。閥前調節壓力(K)型、閥后調節壓力(B)型安裝典型
自力式壓力調節閥產品特點
自力式壓力調節閥(蒸汽減壓閥)無需外加能源,能在無電無氣的場所工作,既方便又節約了能源。
壓力分段范圍細且互相交叉,調節精度高。
壓力設定值在運行期間可連續設定。
對閥后壓力調節,閥前壓力與閥后壓力之比可為10:1~10:8。
橡膠膜片式檢測,執行機構測精度高、動作靈敏。
采用壓力平衡機構,使調節閥反應靈敏、控制精確。
自力式壓力調節閥主要零件材料
主要零件材料
閥體:ZG230-450、ZG1Cr18Ni9Ti 、ZGCr18Ni12Mo2Ti
閥芯:1Cr18Ni9Ti 、Cr18Ni12Mo2Ti
閥座:1Cr18Ni9Ti 、Cr18Ni12Mo2Ti
閥桿:1Cr18Ni9Ti 、Cr18Ni12Mo2Ti
膜蓋:A3、A3鋼涂四氟乙烯 不銹鋼
填料:丁腈、乙炳、氟、耐油橡膠
